80 mq
3
2
Proponiamo in Vendita a Fiumicino Paese, in Largo dello Spinarello, una traversa tranquilla e ben collegata di Via della Foce Micina,
un grazioso quadrilocale su due livelli inserito in uno stabile in tinta in ottimo stato di manutenzione.
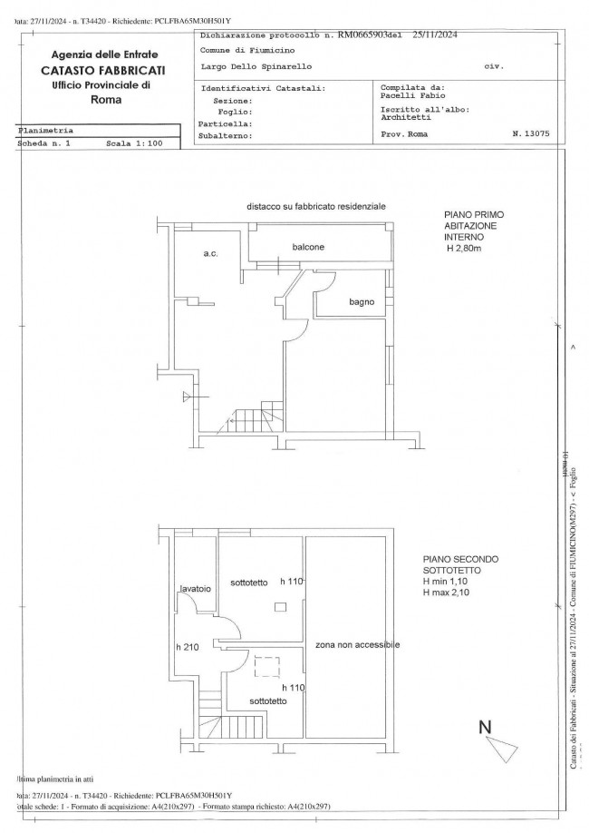
L'immobile, caratterizzato da ambienti luminosi e ben distribuiti, si compone:
Al primo piano di un accogliente soggiorno con angolo cottura, una camera matrimoniale, un bagno e un balcone vivibile di circa 8 mq, ideale per momenti di relax all'aperto.
Al secondo piano troviamo invece due ulteriori camere e un bagno, perfetti come zona notte o per chi necessita di spazi aggiuntivi per studio o smart working.
La proprietà dispone inoltre di un posto auto scoperto di 19 mq, elemento sempre più raro e prezioso nella zona.
L'Appartamento si presenta in ottime condizioni interne, dotato di porta blindata, infissi in legno con doppi vetri, condizionatori e riscaldamento autonomo, caratteristiche che contribuiscono a garantire comfort e sicurezza.
La posizione è uno dei grandi punti di forza: Fiumicino è una zona servitissima e ricercata, a pochi passi da negozi, scuole, servizi, ristoranti e dalle principali vie di collegamento.
La vicinanza al lungomare, al porto e all'aeroporto rende l'area strategica sia per residenti che per chi desidera un investimento dalla forte potenzialità.
Un immobile ideale per famiglie, giovani coppie o come soluzione da mettere a reddito, in uno dei contesti più piacevoli e vivibili di Fiumicino.
Riferimento: 26/512
Per ulteriori informazioni o per fissare un appuntamento, non esitare a contattarci:
Al numero 348.39.59.461. anche via Whatsapp, oppure via email all'indirizzo info@resimmobiliare.com

80 mq
3
2