148 mq
5
6
Appartamento ATTUALMENTE LOCATO
Nel centralissimo quartiere Aurelio, in posizione privilegiata, con possibilità di parcheggio pubblico proprio all'ingresso del condominio, proponiamo la Vendita di un Appartamento di ampia metratura,
Precisamente in via Aurelia, posto al piano secondo di una palazzina di 4 piani.
L'unità immobiliare, rappresenta un ottima opportunità anche di investimento, infatti attualmente è locata come struttura ricettiva.
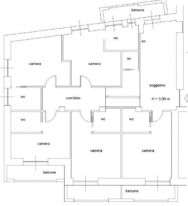
Casa è composta di:
- 1 ampio soggiorno con cucina a vista.
- 5 camere en suite (con bagno interno) di diverse dimensioni (singola, doppia e tripla),
- 1 bagno di cortesia,
- 3 balconi,
- 6 bagni totali.
Il condominio signorile è provvisto di ascensore ed un bel giardino perimetrale, ottimo come situazione abitativa per nuclei familiari, ma ancor di più come investimento potendo sfruttare l'attuale destinazione.
Casa gode di una tripla esposizione esterna, ed è in ottimo stato abitativo.
RES Immobiliare, operante a Roma e Lido di Ostia dal 1989, garantisce assistenza completa fino al rogito notarile
Per maggiori informazioni o per fissare una visita, contattaci al 06.95.58.57.17 o al 348.39.59.461, oppure via email all'indirizzo info@resimmobiliare.com.
Riferimento dell'immobile: 46/500.
Rogito Ergo Sum, diamo casa ai tuoi sogni!

148 mq
5
6