100 mq
2
1
Magliana, Via Foiano della Chiana
Ampio e luminoso trilocale ristrutturato
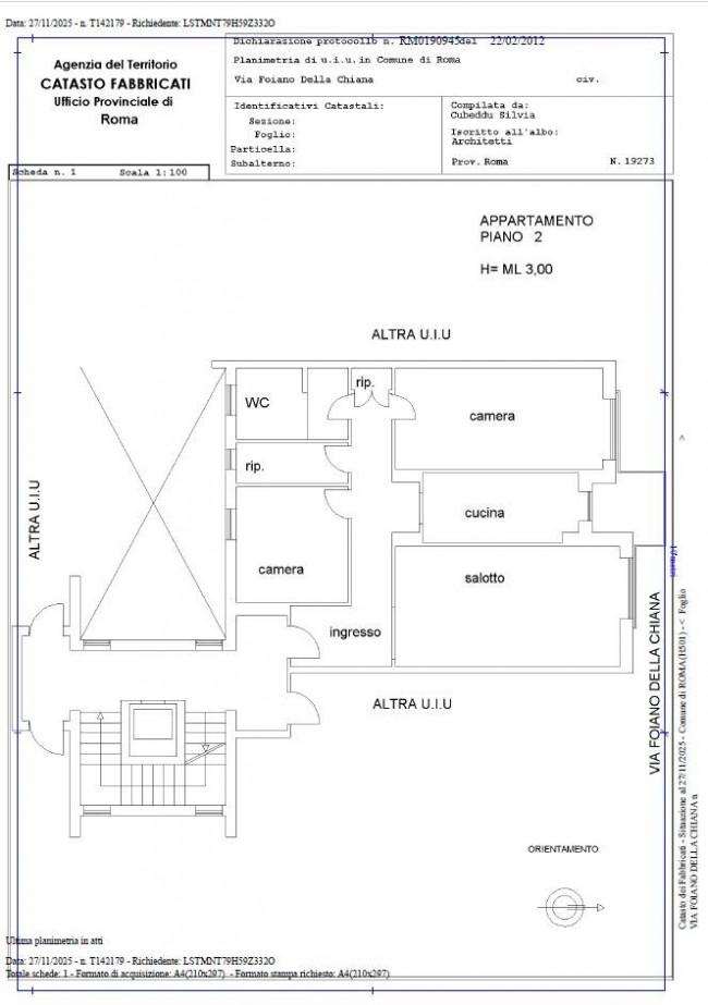
In una delle zone più servite e richieste di Roma, proponiamo in Vendita un Appartamento luminosissimo situato al 2° piano di una palazzina in cortina di 7 piani, dove sono già stati deliberati e saldati i lavori di ristrutturazione straordinaria, garantendo così un contesto curato e senza spese future.
L'immobile, in ottimo stato di manutenzione grazie a una recente ristrutturazione, si presenta con spazi generosi e ben distribuiti.
L'ingresso conduce a un ampio salone ideale per momenti di relax e convivialità.
La zona notte è composta da due camere da letto confortevoli e silenziose.
La cucina abitabile, funzionale e luminosa, permette di vivere appieno l'ambiente giorno.
Il servizio finestrato è moderno e ben rifinito.
E' inoltre presente un comodo ripostiglio con finestra, facilmente trasformabile in un secondo bagno.
A completare la proprietà vi sono un pratico armadio a muro e un balcone.
Uno dei punti di forza dell'Appartamento è la sua esposizione a mezzogiorno e l'affaccio libero, che regalano luce naturale durante tutto il giorno e una piacevole sensazione di ampiezza.
Soluzione ideale per chi cerca una casa pronta da abitare, luminosa, con spazi comodi e in un contesto già riqualificato.
Riferimento: 46/105
Tel. 06.95.58.57.17.

100 mq
2
1