70 mq
1
1
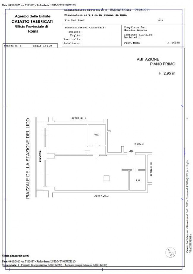
Ostia Lido, Via dei Remi, a due passi dalla Stazione Lido Centro.
Un appartamento che unisce comodità, stile e vista in una delle zone più vive e richieste di Ostia!
Situato proprio ad un passo dalla stazione Lido Centro, questo elegante BILOCALE, al primo piano di un palazzo in tinta con ascensore, offre la perfetta combinazione tra vita cittadina e atmosfera di mare.
Totalmente ristrutturato, l'appartamento è pronto per essere abitato da chi desidera entrare subito in una casa moderna e funzionale:
infissi in PVC con doppi vetri
porta blindata
condizionatori di ultima generazione
termoarredi nel bagno
impianti e finiture completamente nuovi
Gli ambienti sono luminosi e ben distribuiti:
un soggiorno con cucinotto e accesso al balcone panoramico, con vista aperta sulla piazza della stazione e sullo sfondo la maestosa cupola di Regina Pacis,
una camera matrimoniale anch'essa con uscita sul balcone,
bagno con box doccia,
ripostiglio
una comoda cantina di 8 mq.
La zona è un vero punto di forza: collegamenti diretti con Roma, servizi di ogni tipo sotto casa, la passeggiata del mare a pochi minuti, e un contesto in piena rivalutazione che rende questo appartamento un investimento solido e di valore crescente.
Ideale per chi cerca una prima casa moderna o un ottimo investimento da mettere a reddito.
Una casa nuova, una vista unica, una posizione strategica: tutto quello che serve per vivere Ostia al meglio.
Riferimento immobile: 1/300

70 mq
1
1